剑指工控 星期四, 12/07/2017 - 07:00 发表
从事工控行业,不可避免接触液压气动原理图,而液压气动专业与工控完全属于两个不同的专业,好多从事工控的人员读不懂液压气动原理图,导致程序编写时出现各种困境。其实,液压气动原理图与我们常画的电气原理图有很多相似的地方,只要您能读懂电路图,看液压气动原理图也很简单。现从工控角度介绍下工控人如何去解读液压原理图。
剑指工控 星期二, 12/05/2017 - 16:35 发表
剑指工控 星期二, 12/05/2017 - 07:00 发表

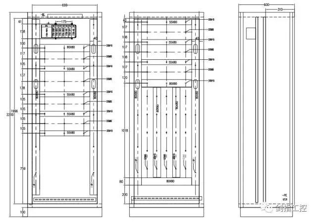
上节我们讲了电源柜的电源分配问题,本节我们介绍柜体的设计和端子排图的设计:
剑指工控 星期四, 11/30/2017 - 07:00 发表

一个工控行业的做办公自动化的人。。。经常会用到饼图,老铁,来一组饼吧:
剑指工控 星期二, 11/28/2017 - 07:00 发表

截止上一节我们完成了PLC的硬件和软件选型,本节我们来讲PLC控制系统的构成:
一个完整的PLC控制系统应该由上位机、控制柜和现场仪表和设备构成。现场仪表和设备本文不做介绍,因为牵涉的面比较广,有电机、阀门、仪表等等,每一个都可以独立为一个专业,本节我们首先介绍上位机:
剑指工控 星期五, 11/24/2017 - 21:40 发表

Modbus是由Modicon(现为施耐德电气公司的一个品牌)在1979年发明的,是全球第一个真正用于工业现场的总线协议。
剑指工控 星期五, 11/24/2017 - 16:04 发表
剑指工控 星期四, 11/23/2017 - 06:00 发表
页面